Чертежи и расчёты козлового крана грузоподъёмностью 3,2 т
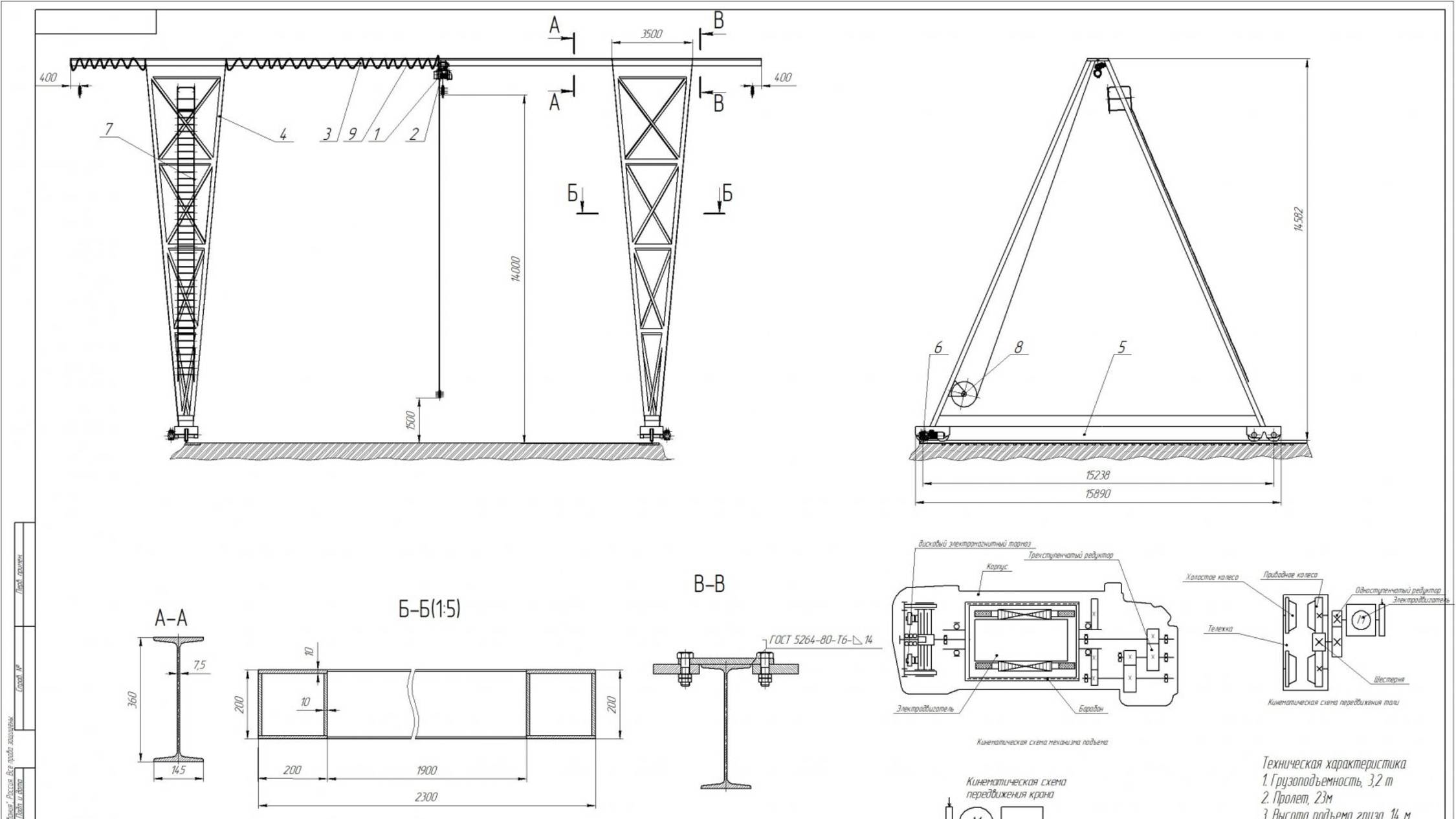
Скачать чертежи и расчёты козлового крана грузоподъёмностью 3,2 т можно со страницы по следующей ссылке - https://www.2d-3d.ru/2d-galereia/gpm/kozlovoi-kran/10841-proektirovanie-kozlovogo-krana-gp-32-t.html В данной работе был спроектирован двухконсольный козловой кран. Он используется для подъема и перемещения крупногабаритных грузов, контейнеров, а также монтажа секционных конструкций. Он относится к мостовой разновидности кранового оборудования и базируется на опорах. Перемещение моста на высоких опорах обеспечивает высокую грузоподъемность и возможность работы на обширных площадках. По сравнению с кранами мостового типа, данный тип крана более мобилен. На мостовом пролете движется и грузовая тележка, к которой прикрепляют такие устройства, как магнит, крюк, траверс.
Скачать чертежи и расчёты козлового крана грузоподъёмностью 3,2 т можно со страницы по следующей ссылке - https://www.2d-3d.ru/2d-galereia/gpm/kozlovoi-kran/10841-proektirovanie-kozlovogo-krana-gp-32-t.html В данной работе был спроектирован двухконсольный козловой кран. Он используется для подъема и перемещения крупногабаритных грузов, контейнеров, а также монтажа секционных конструкций. Он относится к мостовой разновидности кранового оборудования и базируется на опорах. Перемещение моста на высоких опорах обеспечивает высокую грузоподъемность и возможность работы на обширных площадках. По сравнению с кранами мостового типа, данный тип крана более мобилен. На мостовом пролете движется и грузовая тележка, к которой прикрепляют такие устройства, как магнит, крюк, траверс.
