Проектирование технологического комплекса для производства цемента сухим способом
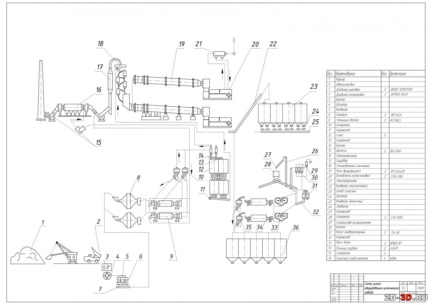
Курсовой проект с запиской и чертежами в редактируемом формате можно скачать со страницы - https://www.2d-3d.ru/2d-galereia/proektirovanie_predpriatii/9342-proektirovanie-tehnologicheskogo-kompleksa-dlja-proizvodstva-cementa-suhim-sposobom.html При выполнении данной курсовой работы был проанализирован и полноценно спроектирован технологический комплекс для производства цемента сухим способом производительностью 2,2 млн. т., подобрано специальное оборудование, отвечающее технико-техническим требованиям, проверена безопасность труда, а также проведено экономическое обоснование данного производства. Последнее показало, что завод окупит свои капитальные вложения через 8,6 лет, что соответствует норме и подтверждает экономическую конструктивность спроектированного комплекса. Курсовой проект выполнен полностью, со всеми расчётами и подбором оборудования под необходимую производительность. #Чертёж #Dwg #cdw #AutoCAD #Чертежи #Автокад #Проекты #Компас #Расчёты #Цех #Производствохлеба #Производство #Дипломный #Проект #Чертеж #Dwg #Dwgформат #диплом #drawing #расчет #Технология #Студенты #курсовая #курсовой #ВКР #Диплом #Дипломнаяработа #цемент #учёба #Студент #схема #схемы 2d-3d.ru
Курсовой проект с запиской и чертежами в редактируемом формате можно скачать со страницы - https://www.2d-3d.ru/2d-galereia/proektirovanie_predpriatii/9342-proektirovanie-tehnologicheskogo-kompleksa-dlja-proizvodstva-cementa-suhim-sposobom.html При выполнении данной курсовой работы был проанализирован и полноценно спроектирован технологический комплекс для производства цемента сухим способом производительностью 2,2 млн. т., подобрано специальное оборудование, отвечающее технико-техническим требованиям, проверена безопасность труда, а также проведено экономическое обоснование данного производства. Последнее показало, что завод окупит свои капитальные вложения через 8,6 лет, что соответствует норме и подтверждает экономическую конструктивность спроектированного комплекса. Курсовой проект выполнен полностью, со всеми расчётами и подбором оборудования под необходимую производительность. #Чертёж #Dwg #cdw #AutoCAD #Чертежи #Автокад #Проекты #Компас #Расчёты #Цех #Производствохлеба #Производство #Дипломный #Проект #Чертеж #Dwg #Dwgформат #диплом #drawing #расчет #Технология #Студенты #курсовая #курсовой #ВКР #Диплом #Дипломнаяработа #цемент #учёба #Студент #схема #схемы 2d-3d.ru
